Top Angebot in KR-Bockum: Besondere, modernisierte 110m² Wohnung mit 4 Zimmern und großem Balkon!
Daten zur Immobilie
- Objekt-Nr.5272
- Ort47800 Krefeld / Bockum
- ObjektartEtagenwohnung
- Baujahr1955
- Zimmer4
- Wohnfläche110.00 m²
- Kaufpreis Erfolgreich vermarktet!
Objektbeschreibung
Diese schöne Eigentumswohnung befindet sich in sehr beliebter Lage von Krefeld - Bockum! Die gute Infrastruktur, der kurze Weg zu verschiedensten Einkaufsmöglichkeiten und die dennoch ruhige Lage machen diesen Standort sehr interessant für Eigennutzer oder Kapitalanleger.
Eigennutzer werden die begehrte Lage schnell zu schätzen wissen, Anleger werden stets durch hohe Mieternachfrage belohnt.
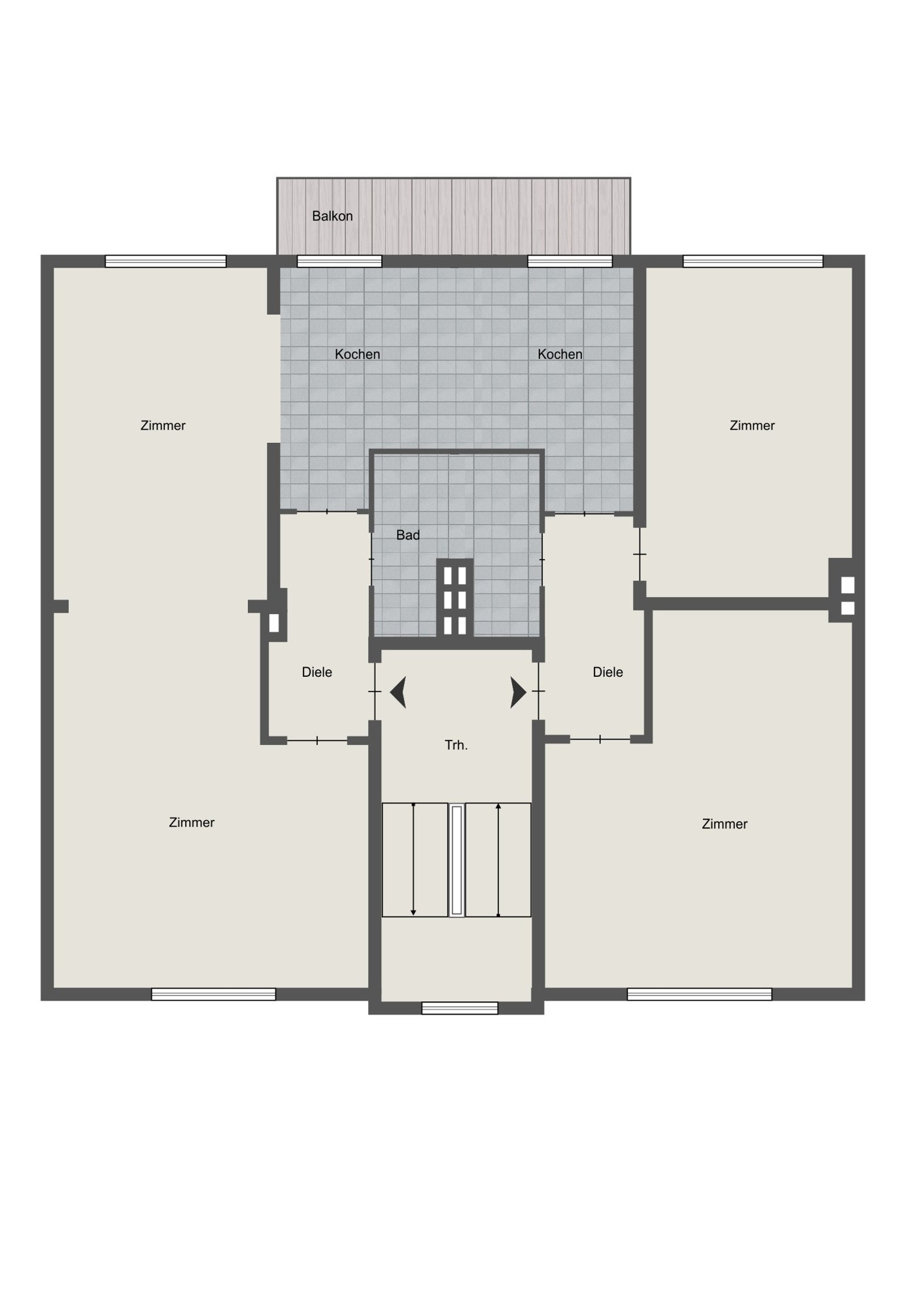
Im 2. OG eines gepflegten Mehrfamilienhauses gelegen, bietet diese ca. 110 m² Eigentumswohnung einen großen Balkon mit schönem Blick ins Grüne! Ursprünglich 2 kleine Einheiten wurden 2012 von der jetzigen Eigentümerin zusammengelegt und umfangreich modernisiert!
Durch den Zusammenschluss der zwei Wohnungen erzielte man eine ideale Aufteilung: Die linke Hälfte der Wohnung besteht aus einem großen, offenen Wohn-/Essbereich, der übergeht in die gemütliche Küche, welche gleichzeitig die Verbindung der beiden Einheiten darstellt. Die Küche bietet Zutritt auf den großen Balkon mit Blick in die Gärten. Auf der rechten Seite der Wohnung liegt der Schlafbereich - ein kleineres Zimmer zur Gartenseite und ein geräumiges Schlafzimmer zur Straße lassen Platz für zahlreiche Gestaltungsmöglichkeiten - alles in allem ist die Zusammenlegung der Wohnung mit ihrer Grundrissgestaltung als sehr gelungen zu bezeichnen!
Abgerundet wird diese besondere Wohnung durch das Badezimmer, welches Sie von beiden Seiten betreten können. Ebenfalls im Jahr 2012 modernisiert, steht Ihnen hier eine große Dusche und ein praktischer Bereich für Waschmaschine und Trockner zur Verfügung.
Ein separater Abstellraum im Keller vervollständigt die bezugsfreie Immobilie in beliebter Lage!
Insgesamt eine top gepflegte und gut ausgestattete Eigentumswohnung zu einem fairen Preis-/Leistungsverhältnis! Auf schriftliche Anfrage erhalten Sie gerne weitere Details.
Ausstattung
- top gepflegte Eigentumswohnung in bester Wohnlage!
- besondere Grundrissgestaltung durch Zusammenlegung zweier Wohnungen
- umfangreiche Modernisierung in 2012
- modernisiertes Badezimmer mit Dusche
- Laminat. Teppich und Feinsteinzeugfliesen in Schiefer-Optik
- doppelund isolierverglaste Kunststofffenster
- geräumiger Küchenbereich mit moderner Einbauküche
- übergroßer Balkon mit Blick ins Grüne
- ruhige Seitenstraße
- uvm.
Grundrisse
Lage
Krefeld-Bockum ! Zweifelsohne die beliebteste Wohnlage Krefelds.
Gute Einkaufsmöglichkeiten, beste Verkehrsanbindungen - auch mit Bus und Bahn- . Schulen, Ärzte, Banken, etc, alles fußläufig zu erreichen...Auch in der City sind Sie in wenigen Minuten!
Der Krefelder Stadtwald in nächster Nähe. Sportvereine, Restaurants, Golfplätze, etc., diese Lage ist wirklich perfekt!
Ein wirklich sehr toller Standort für Jung und Alt !
Sonstiges
Weitere interessante Angebote: WWW.KERSTING-IMMOBILIEN.DE
Sie möchten Ihre Immobilie jetzt oder später verkaufen bzw. vermieten? Dann nutzen Sie unsere über 37jährige Erfahrung in der Vermittlung von Immobilien!
Gerne bewerten wir kostenfrei auch Ihre Immobilie und erstellen Ihnen ganz unverbindlich ein individuelles Vermarktungskonzept.
Einfach anrufen, mailen oder ein Besuch in unserem Immobilienshop Uerdinger Str. 242 in Krefeld-Bockum. Wir sind gerne für Sie da!
Wir wurden 2025 erneut mehrfach ausgezeichnet:
BELLEVUE BEST PROPERTY AGENT 2025
IMMOBILIENSCOUT PREMIUMPARTNER 2025
FOCUS TOP IMMOBILIENMAKLER 2025
IMMOWELT BUSINESSPARTNER 2025
...und auch 2026 wieder:
BELLEVUE BEST PROPERTY AGENT 2026
IMMOBILIENSCOUT EXPERT 2026
FOCUS TOP IMMOBILIENMAKLER
IMMOWELT BUSINESSPARTNER
Energieausweis
- Ausweistyp: Verbrauch
- Verbrauchskennwert: 171.50 kWh/(m²*a)
- Endenergiebedarf: kWh/(m²*a)
- Gültig bis: 2034-04-17
- Befeuerungsart: Gas
- Baujahr der Heizanlage: 1955
- Energiekennwert: F














Der guten Ordnung halber möchten wir darauf aufmerksam machen, dass bei Abschluss eines notariellen Kaufvertrages, der durch unseren Nachweis und/oder Vermittlung zustande kommt, der Käufer an uns eine Maklerprovision in Höhe von 3,57% inkl. 19% MwSt. des Kaufpreises zu zahlen hat. Sämtliche Angaben erhielten wir vom Eigentümer. Bitte haben Sie Verständnis dafür, dass wir jede Haftung für die Richtigkeit der Angaben vollständig ausschließen. Außerdem möchten wir darauf hinweisen, dass im Exposé enthaltenes Bildmaterial aufgrund von Fotobearbeitungsprogrammen oder Einsatz von künstlicher Intelligenz von der Realität abweichen kann.