Herrschaftliche Fabrikanten-Villa mit ca. 400m² Wohnfläche & Doppelgarage in 1A Lage, Kempener Feld
Daten zur Immobilie
- Objekt-Nr.5358
- Ort47803 Krefeld / Kempener Feld/Baackeshof
- ObjektartEinfamilienhaus
- Baujahr1930
- Grundstücksfläche869.00 m²
- Wohnfläche384.00 m²
- Kaufpreis 849.000,- €
Objektbeschreibung
Eine eindrucksvolle frei stehende Fabrikanten-Villa in bester Wohnlage, im beliebten Krefelder Westen gelegen!
Ungefähr im Jahr 1930 erbaut, steht diese großzügige Backstein-Villa in einem knapp 900 m² großen Gartenpark. Bereits das nahezu herrschaftlich wirkende Äußere dieses klassischen Kaffeemühlen-Hauses dürfte Sie mit Sicherheit überzeugen!
Schnell werden Sie merken, welch großes Potenzial diese Ausnahme-Immobilie mit sich bringt! Höhere Decken, großzügige Raumgestaltung, breite Fensterfronten mit Blick in den Garten und vieles mehr geben Ihnen Platz zum Entfalten. Über die Jahre stets liebevoll gepflegt, sollten Sie die notwendigen Modernisierungsmaßnahmen jedoch nicht außer Acht lassen. Verhelfen Sie diesem Rohdiamant zu neuem Glanz und lassen Sie Ihrer Kreativität bei den entsprechenden Maßnahmen freien Lauf!
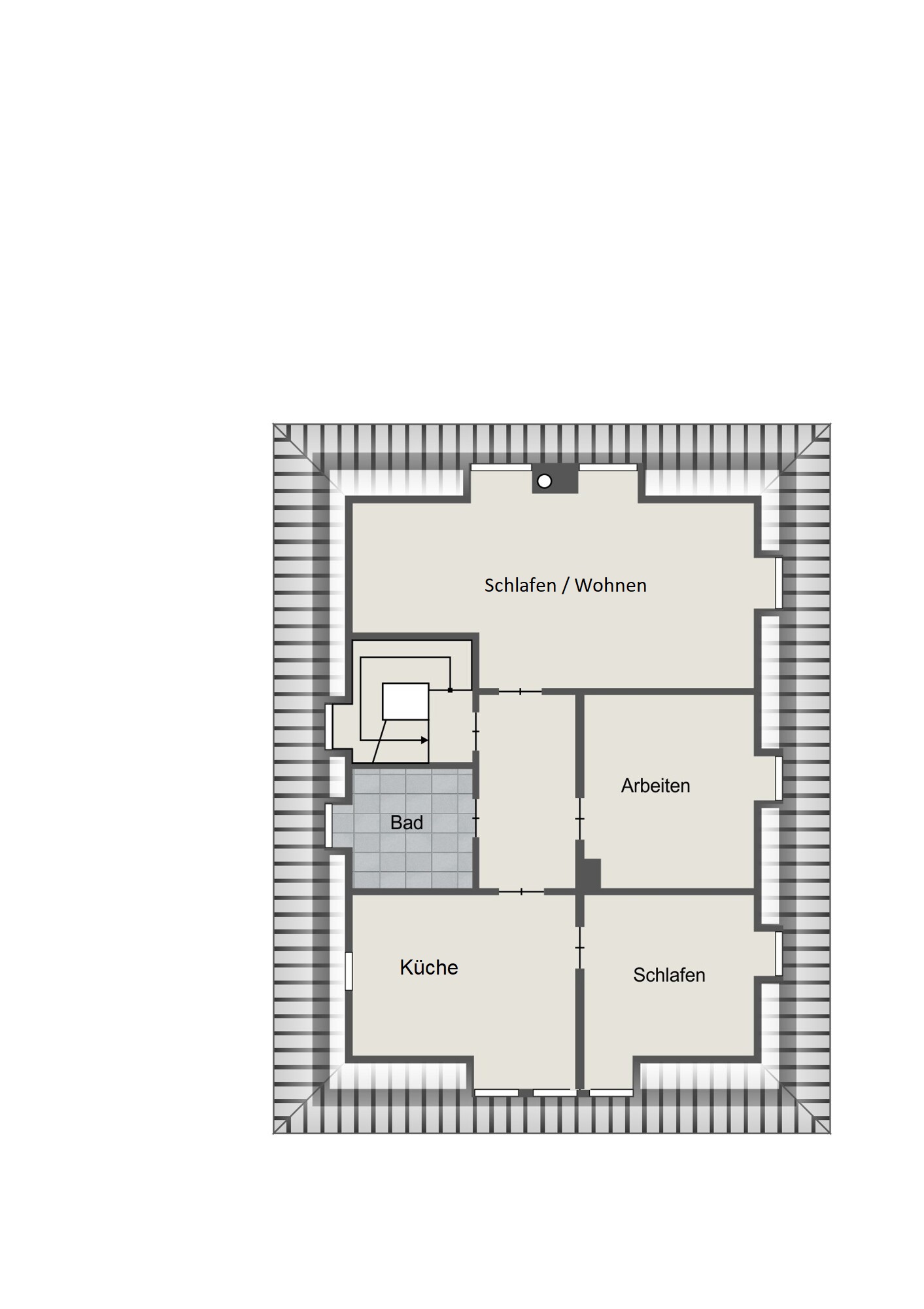
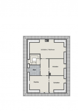
Die Wohnfläche beträgt insgesamt ca. 400 m² und verteilt sich auf das Erdgeschoss, das 1. Obergeschoss und das Dachgeschoss. Bereits der Eintritt in diese Ausnahme-Immobilie zeigt, was an Großzügigkeit auf Sie zukommt: Ein überaus einladendes Entrée mit Blick auf das schöne Treppenhaus heißt Sie herzlich willkommen! Mit einem über 100 m² großen Wohn-/Essbereich mit schönem Ausblick in den Garten, welcher durch ein paar Treppenstufen eine zusätzliche Gliederung erfährt, überzeugt das Erdgeschoss und bietet mit dem offenen Kamin im unteren Wohnbereich sicherlich besondere Gestaltungsmöglichkeiten!
Die derzeit geschlossene Küche mit angrenzender Speisekammer ist neuwertig und bietet zudem Platz für eine gemütliche "Frühstücks-Ecke". Ein kleines Gäste-WC, welches bereits modernisiert wurde, vervollständigt die gelungene Aufteilung.
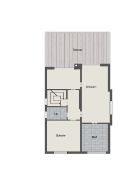
Im Obergeschoss stehen Ihnen 3 Schlafzimmer - eines mit riesigem Balkon Richtung Garten - und ein modernes Badezimmer zur Verfügung. Das Dachgeschoss wartet mit weiteren, separaten Zimmern und einem Badezimmer auf Sie, nutzbare wäre diese Etage als autarke Einheit in Form einer Einliegerwohnung. Auch das Konzept des Mehrgenerationen-Wohnens lässt sich hier wunderbar umsetzten.
Voll unterkellert, steht Ihnen hier zusätzlich viel Fläche für Stau- und Lagermöglichkeiten sowie eine Doppelgarage zur Verfügung. Der Keller weist aktuell Modernisierungsbedarf auf, ein erster Kostenvoranschlag liegt bereits vor.
Diese herrschaftliche Villa ist ein wahres Raumwunder und Seltenheit auf dem Krefelder Immobilienmarkt!
Wir haben Ihr Interesse an dieser Immobilie geweckt? Dann freuen wir uns auf Ihre Kontaktaufnahme und beraten Sie gerne ausführlich.
Ausstattung
- herrschaftliche Unternehmervilla
- großzügige Raumgestaltung
- gigantischer Wohnbereich
- gemütlicher Kamin
- separates Esszimmer
- zahlreiche Schlafzimmer
- diverse Tageslichtbäder
- zwei Garagen im Haus
- zauberhafter Garten
- große, neuwertige Terrasse
- große Terrasse im Obergeschoss mit Gartenblick
- Modernisierung erforderlich
- uvm.
Grundrisse
Lage
Die Lage? Ein absoluter Traum!
Die angebotene Immobilie befindet sich im begehrten Krefelder Westen, der für seine ruhige und grüne Wohnlage bekannt ist. Hier genießen Bewohner eine harmonische Mischung aus urbanem Leben und Naturverbundenheit. Uns das Ganze eingebettet in herrschaftliche Unternehmervillen und wunderschöne Altbauten.
Die Anbindung an das öffentliche Verkehrsnetz ist hervorragend, und auch die Autobahnanbindung ist in wenigen Fahrminuten erreichbar. Schulen, Kindergärten, Einkaufsmöglichkeiten und Freizeiteinrichtungen befinden sich in unmittelbarer Nähe und sind bequem zu Fuß oder mit dem Fahrrad erreichbar.
Sonstiges
Weitere interessante Angebote: WWW.KERSTING-IMMOBILIEN.DE
Sie möchten Ihre Immobilie jetzt oder später verkaufen bzw. vermieten? Dann nutzen Sie unsere über 37jährige Erfahrung in der Vermittlung von Immobilien!
Gerne bewerten wir kostenfrei auch Ihre Immobilie und erstellen Ihnen ganz unverbindlich ein individuelles Vermarktungskonzept.
Einfach anrufen, mailen oder ein Besuch in unserem Immobilienshop Uerdinger Str. 242 in Krefeld-Bockum. Wir sind gerne für Sie da!
Wir wurden 2024 erneut mehrfach ausgezeichnet:
BELLEVUE BEST PROPERTY AGENT 2024
IMMOBILIENSCOUT PREMIUMPARTNER 2024
FOCUS TOP IMMOBILIENMAKLER 2024
IMMOWELT BUSINESSPARTNER 2024
...und auch 2025 wieder:
BELLEVUE BEST PROPERTY AGENT 2025
IMMOBILIENSCOUT EXPERT 2025
FOCUS TOP IMMOBILIENMAKLER
IMMOWELT BUSINESSPARTNER
Energieausweis
- Ausweistyp: Bedarf
- Verbrauchskennwert: kWh/(m²*a)
- Endenergiebedarf: 111.30 kWh/(m²*a)
- Gültig bis: 2035-09-30
- Befeuerungsart: Gas
- Baujahr der Heizanlage: 2009
- Energiekennwert: D

































Der guten Ordnung halber möchten wir darauf aufmerksam machen, dass bei Abschluss eines notariellen Kaufvertrages, der durch unseren Nachweis und/oder Vermittlung zustande kommt, der Käufer an uns eine Maklerprovision in Höhe von 3,57% inkl. 19% MwSt. des Kaufpreises zu zahlen hat. Sämtliche Angaben erhielten wir vom Eigentümer. Bitte haben Sie Verständnis dafür, dass wir jede Haftung für die Richtigkeit der Angaben vollständig ausschließen. Außerdem möchten wir darauf hinweisen, dass im Exposé enthaltenes Bildmaterial aufgrund von Fotobearbeitungsprogrammen oder Einsatz von künstlicher Intelligenz von der Realität abweichen kann.