Krefeld-Hüls: charmante Doppelhaushälfte in beliebter Lage, toller Sonnengarten & Garage inklusive!
Daten zur Immobilie
- Objekt-Nr.5364
- Ort47839 Krefeld
- ObjektartDoppelhaushälfte
- Baujahr1992
- Grundstücksfläche208.40 m²
- Wohnfläche106.45 m²
- Kaufpreis Erfolgreich vermarktet!
Objektbeschreibung
In begehrter Wohnlage von Krefeld-Hüls an einem ruhigen Stichweg gelegen, befindet sich dieses charmante Einfamilien-Doppelhaus. Im Jahr 1992 in massiver Bauweise mit Vollunterkellerung erstellt, bietet diese hübsche Immobilie auf ca. 110 m² ausreichend Platz für eine 4-köpfige Familie.
Bereits von der Straßenfront überzeugt die Doppelhaushälfte mit einem einladenden Äußeren - der Eingangsbereich wird repräsentativ von einem kleinen Balkon überdacht, und heißt Sie herzlich willkommen!
Zeitlos und klassisch gut aufgeteilt, stellt das Erdgeschoss die "Familien-Etage" dar. Der geräumige Wohn-/Essbereich bietet Ihnen ausreichend Platz für Ihre persönlichen Gestaltungsideen. Die hausbreiten, bodentiefen Sprossen-Fenster sorgen für viel Tageslicht und einen schönen Blick in den Sonnen-Garten! Die derzeit separierte Küche könnte bei Bedarf auch zum Wohnzimmer hin geöffnet werden. Sie bevorzugen ein offenes Raumkonzept? Hier ist es möglich - entscheiden Sie selbst! Ein weißes Gäste-WC mit Dusche rundet die Erdgeschoss-Etage ideal ab.
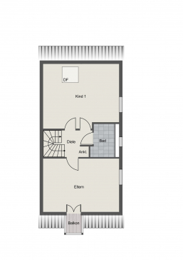
Im Obergeschoss befinden sich zurzeit zwei ähnlich große, helle Schlafzimmer, wovon das Schlafzimmer zum Garten ohne großen Aufwand wieder in zwei kleine Zimmer geteilt werden könnte (die zweite Zimmertüre ist noch vorhanden). Das zweite Schlafzimmer bezaubert durch eine bodentiefe Gaube mit Zugang zum kleinen Balkon. Ein Tageslichtbad mit Badewanne, sowie ein kleiner Abstellraum runden diese Etage perfekt ab.
Der Garten ist eine kleine Wohlfühl-Oase und lädt zum Entspannen und Verweilen ein. Zur richtigen Sonnenseite ausgerichtet, können Sie sich bereits jetzt auf den nächsten Sommer freuen - hier kommt man zur Ruhe. Die Gartengröße ist nicht zu groß und nicht zu klein, daher ist auch der Arbeitsaufwand durchaus überschaubar. Praktischerweise gelangen Sie vom Garten aus auch direkt zur bereits im Kaufpreis enthaltenen Einzelgarage. Gut durchdacht!
Das ausgebaute Dachgeschoss bietet Ihnen mit einem großen Raum Platz für ein schönes Arbeitszimmer und/oder ein weiteres Kinderzimmer. Durch das Velux-Dachfenster und das Fenster zur Giebelseite ist es hier ebenfalls sehr hell und freundlich. Im Kellerbereich gibt es ausreichend Stauraum sowie ein großes Hobby-Zimmer, das Ihnen eventuell als Home-Office dienen könnte.
Von den jetzigen Eigentümern über die Jahre liebevoll gepflegt, erwartet Sie hier eine Immobilie in sehr gutem Zustand. Zudem wurde im Jahre 2020 eine neue Gas-Zentralheizung installiert.
Ein kleines Raumwunder in perfektem Zustand!
Wir haben Ihr Interesse an unserem Immobilienangebot geweckt? Dann freuen wir uns auf Ihre Kontaktaufnahme.
Ausstattung
- wunderschönes Einfamilien-Doppelhaus (Grundstück nach WEG aufgeteilt)
- tolle Familienwohnlage mit hervorragender Infrastruktur
- weiße Kunststoff-Sprossenfenster mit Rollläden
- neue Gas-Zentralheizung (2020)
- weißes Tageslichtbadezimmer mit Badewanne
- weißes Gäste-WC mit Dusche
- Einzelgarage mit direktem Gartenzugang
- insgesamt 3-4 Schlafzimmer
- neu geflieste Terrasse mit Markise
- voll unterkellert
- uvm.!
Grundrisse
Lage
Herzlich Willkommen in Krefeld Hüls!
Der Ortsteil Hüls bietet Ihnen eine gute Infrastruktur mit allen Geschäften des täglichen Bedarfs in nächster Nähe. Besonders beliebt ist der Hülser Markplatz, der mit seinen Cafés und Restaurants zum gemütlichen Verweilen einlädt.
Schulen, Kindergärten sowie Ärzte befinden sich in unmittelbarer Nähe. Die Krefelder Innenstadt ist ebenfalls gut mit öffentlichen Verkehrsmitteln zu erreichen.
Die nächsten Autobahnen wie die Anbindung zur A 44 sind ebenfalls gut erreichbar.
Sonstiges
Weitere interessante Angebote: WWW.KERSTING-IMMOBILIEN.DE
Sie möchten Ihre Immobilie jetzt oder später verkaufen bzw. vermieten? Dann nutzen Sie unsere über 37jährige Erfahrung in der Vermittlung von Immobilien!
Gerne bewerten wir kostenfrei auch Ihre Immobilie und erstellen Ihnen ganz unverbindlich ein individuelles Vermarktungskonzept.
Einfach anrufen, mailen oder ein Besuch in unserem Immobilienshop Uerdinger Str. 242 in Krefeld-Bockum. Wir sind gerne für Sie da!
Wir wurden 2025 erneut mehrfach ausgezeichnet:
BELLEVUE BEST PROPERTY AGENT 2025
IMMOBILIENSCOUT PREMIUMPARTNER 2025
FOCUS TOP IMMOBILIENMAKLER 2025
IMMOWELT BUSINESSPARTNER 2025
...und auch 2026 wieder:
BELLEVUE BEST PROPERTY AGENT 2026
IMMOBILIENSCOUT EXPERT 2026
FOCUS TOP IMMOBILIENMAKLER
Energieausweis
- Ausweistyp: Bedarf
- Verbrauchskennwert: kWh/(m²*a)
- Endenergiebedarf: 140.60 kWh/(m²*a)
- Gültig bis: 2035-09-18
- Befeuerungsart: Gas
- Baujahr der Heizanlage: 1992
- Energiekennwert: E


















Der guten Ordnung halber möchten wir darauf aufmerksam machen, dass bei Abschluss eines notariellen Kaufvertrages, der durch unseren Nachweis und/oder Vermittlung zustande kommt, der Käufer an uns eine Maklerprovision in Höhe von 3,57% inkl. 19% MwSt. des Kaufpreises zu zahlen hat. Sämtliche Angaben erhielten wir vom Eigentümer. Bitte haben Sie Verständnis dafür, dass wir jede Haftung für die Richtigkeit der Angaben vollständig ausschließen. Außerdem möchten wir darauf hinweisen, dass im Exposé enthaltenes Bildmaterial aufgrund von Fotobearbeitungsprogrammen oder Einsatz von künstlicher Intelligenz von der Realität abweichen kann.