Attraktive Neubau-Haushälften in familienfreundlicher Wohnlage zum top Preis! 50% bereits reserviert
Daten zur Immobilie
- Objekt-Nr.5368
- Ort47804 Krefeld / Benrad-Süd
- ObjektartDoppelhaushälfte
- Baujahr2026
- Grundstücksfläche210.00 m²
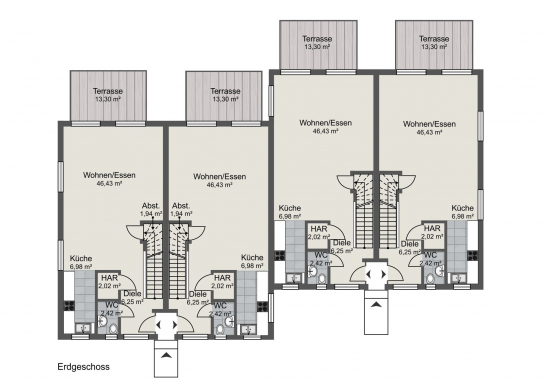
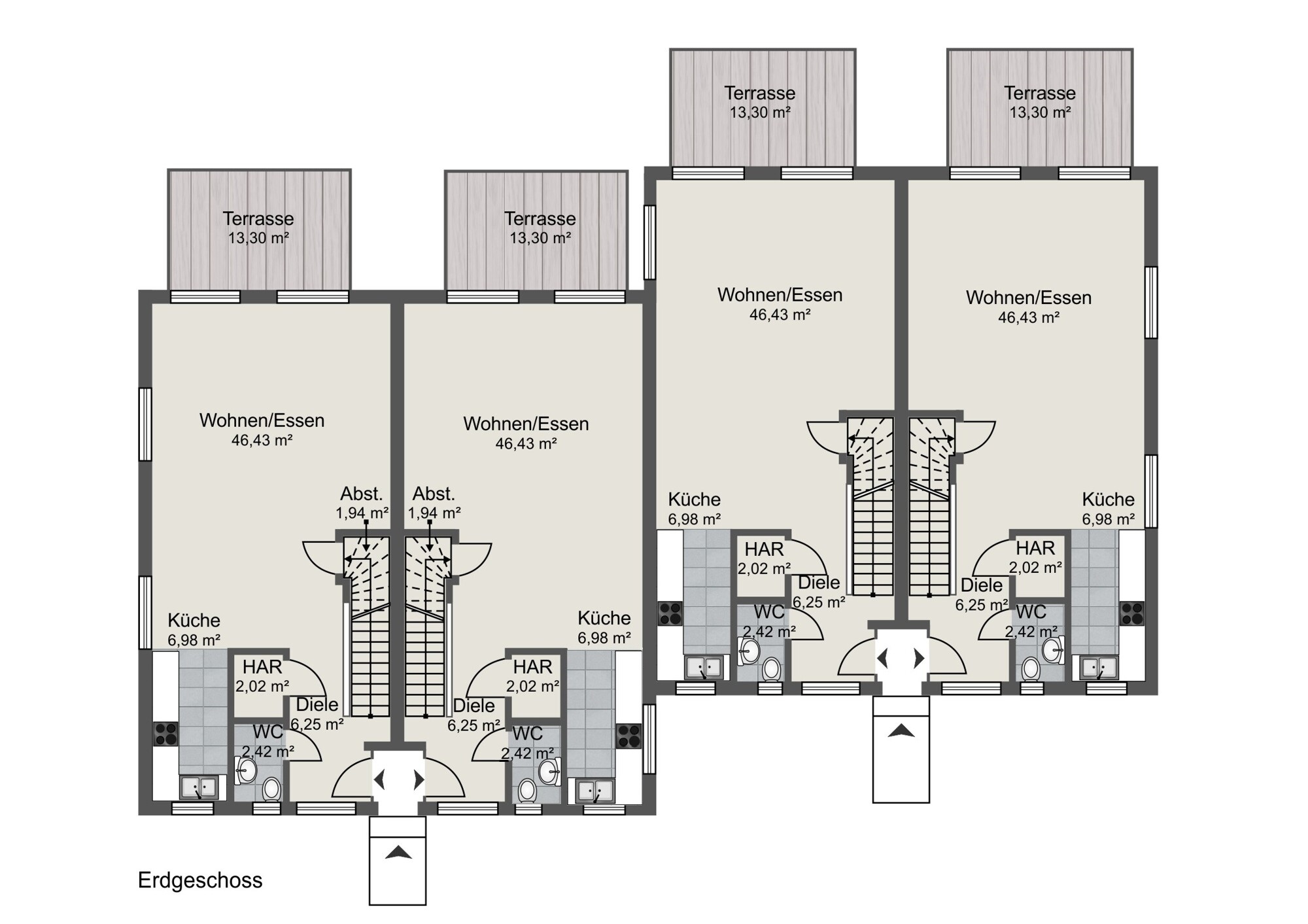
- Wohnfläche136.00 m²
- Kaufpreis 415.000,- €
Objektbeschreibung
Willkommen in Ihrem zukünftigen Zuhause! Dieses spannende Neubauprojekt umfasst insgesamt vier attraktive und zudem erschwingliche, familienfreundliche Immobilien, bestehend aus 4 "Doppelhaushälften" in gefragter und gut angebundenen Lage von Krefeld Benrad/Forstwald. Die besonderen Wohneinheiten sind allesamt mit energieeffizienten Standards und zeitgemäßer Architektur gestaltet, um den Bedürfnissen anspruchsvoller Familien gerecht zu werden.
Der Baubeginn ist bereits für Anfang 2026 und eine mögliche Fertigstellung für ca. 12 Monate später geplant!
Die Architektur der Doppelhaushälften besticht durch klare Linienführung und moderne Ästhetik. Großzügige Fensterelemente sorgen für lichtdurchflutete Räume und schaffen eine harmonische Verbindung zwischen Innen- und Außenbereich. Die durchdachte Ausstattung garantiert einen zeitgemäßen Wohnkomfort und erfüllt die Ansprüche an Energieeffizienz. Die Luft-/Wärme-Pumpe, Fußbodenheizung, 3fach-Verglasung, Rollläden sind nur wenige Beispiele für die bereits vom Bauträger geplante Ausstattung.
Die großzügige Raumaufteilung ist speziell auf die Bedürfnisse von Familien zugeschnitten. Jede Einheit verfügt über geräumige Wohn- und Essbereiche, offen gestaltete Küchen, komfortable Schlafzimmergrößen sowie gut durchdachte Bäder im Obergeschoss zzgl. Gäste-WC im Erdgeschoss. Ein eigener Garten mit Platz für eine Terrasse, Loungeecke, Trampolin & Co. ermöglicht Ihren Kindern ein sicheres Spielen im Grünen.
Zwei der vier Immobilien verfügen jeweils über die Genehmigung für eine Einzelgarage. Die weiteren zwei Einheiten über einen Außenstellplatz.
Die jeweiligen Immobilien zeigen unterschiedliche Grundstücksgrößen und aufgrund dessen auch unterschiedliche Kaufpreise auf. Gerne lassen wir Ihnen auf schriftliche Anfrage ein detailliertes Exposé nebst Baubeschreibung, einem Muster-Werkvertrag, weiteren Pläne sowie die Liste der aktuell noch verfügbaren Immobilien mit jeweiligen Preisen zukommen.
Der hier angegebene Kaufpreis bezieht sich auf das Gesamtpaket aus Grundstück (ca. 210m²) sowie Werkvertrag mit dem Bauträger gemäß Leistungs- und Baubeschreibung.
Wir freuen uns auf Ihre Kontaktaufnahme!
Ausstattung
- attraktives Bauprojekt in Krefeld Benrad/ Forstwald
- 4 "Doppelhaushälften"
- Energieeffizienz A
- zeitnaher Baubeginn geplant
- Fertigstellung bereits ca. 12 Monate nach Baubeginn
- gehobene Grundausstattung
- besonders hohe Decken im Erdgeschoss (ca. 2,95m)
- zwei Einheiten mit Genehmigung für Einzelgaragen
- zwei Einheiten mit jeweils einem Außenstellplatz
- Grundstücksgrößen zwischen ca. 188 m² und ca. 369m²
- Wohnflächen ca. 136m²
- Luft-/Wärmepumpe
- 3-fach Verglasung
- nicht unterkellert
- uvm.
Grundrisse
Lage
Krefeld Benrad/ Forstwald! Dieser Ortsteil erfreut sich größter Beliebtheit! Gerade bei jungen Familien ist dieser Stadtteil aufgrund der sehr guten Infrastruktur äußerst gefragt.
Kindergärten, Spielplätze sowie weiterführende Schulen befinden sich in unmittelbarer Nähe. Bäcker, Banken sowie Einkaufsmärkte sind ebenfalls gut, sogar teilweise in nur 50m zu erreichen.
Die Anbindung an die Krefelder Innenstadt sowie die umliegenden Autobahnen ist als sehr gut zu bezeichnen ... auch für Berufspendler interessant! Zudem lädt die Nähe zum beliebten Krefelder Forstwald zu langen Spaziergängen oder einem Besuch am Wildtiergehege ein.
Insgesamt eine sehr ruhige und familienfreundliche Lage mit netter Nachbarschaft!
Sonstiges
Weitere interessante Angebote: WWW.KERSTING-IMMOBILIEN.DE
Sie möchten Ihre Immobilie jetzt oder später verkaufen bzw. vermieten? Dann nutzen Sie unsere über 37jährige Erfahrung in der Vermittlung von Immobilien!
Gerne bewerten wir kostenfrei auch Ihre Immobilie und erstellen Ihnen ganz unverbindlich ein individuelles Vermarktungskonzept.
Einfach anrufen, mailen oder ein Besuch in unserem Immobilienshop Uerdinger Str. 242 in Krefeld-Bockum. Wir sind gerne für Sie da!
Wir wurden 2024 erneut mehrfach ausgezeichnet:
BELLEVUE BEST PROPERTY AGENT 2024
IMMOBILIENSCOUT PREMIUMPARTNER 2024
FOCUS TOP IMMOBILIENMAKLER 2024
IMMOWELT BUSINESSPARTNER 2024
...und auch 2025 wieder:
BELLEVUE BEST PROPERTY AGENT 2025
IMMOBILIENSCOUT EXPERT 2025
FOCUS TOP IMMOBILIENMAKLER
IMMOWELT BUSINESSPARTNER
Energieausweis
Der Energieausweis ist beantragt und die Daten sind für Sie in Kürze hier verfügbar.












Provisionsfrei