Auszeichnung als Immobilienmakler

Tiergartenviertel: EFH mit Potenzial oder 1400 m² Baugrund für Entwickler – Sie entscheiden.

  • Krefeld - Bockum
  • Kersting Immobilien

Daten zur Immobilie

  • Objekt-Nr.5373
  • Ort47800 Krefeld / Bockum
  • ObjektartEinfamilienhaus
  • Baujahr1952
  • Grundstücksfläche1401.00 m²
  • Wohnfläche167.00 m²
  • Kaufpreis 635.000,- €
Lukas Strücken von Kersting Immobilien
Lukas Strücken Ihr Ansprechpartner

Telefon 02151 560043
info@kersting-immobilien.de

Objektbeschreibung

In einer der begehrtesten Lagen von Krefeld-Bockum präsentiert sich dieses großzügige, freistehende Einfamilienhaus auf einem beeindruckenden, nahezu parkähnlichen Grundstück von rund 1.400 m². Die Umgebung zeigt eine gewachsene, vielseitige Wohnstruktur mit unterschiedlichen Gebäudetypen und gepflegten Grundstücken. Ein angenehmes, urban geprägtes Wohnumfeld, das insbesondere Käufer anspricht, die eine zentrale Lage mit viel Platz kombinieren möchten.

Das Anfang/Mitte der 1950er Jahre in massiver Bauweise errichtete Haus bietet mit knapp 170 m² Wohnfläche außergewöhnlich viel Raum und vielfältige Möglichkeiten. Ein Großteil der Wohnfläche ist dabei praktisch im Erdgeschoss angeordnet und ermöglicht komfortables Wohnen auf einer Ebene. Aktuell verfügt die Immobilie über 3–4 Schlafzimmer; durch die großzügige Grundstruktur besteht zudem die Option auf weitere Ausbaumöglichkeiten.

Die klare, zeittypische Architektur der 50er Jahre verleiht dem Gebäude seinen besonderen Charme. Viele Elemente sind liebevoll gepflegt und unterstreichen den Charakter eines echten Schmuckstücks, das – behutsam modernisiert – zu einem Wohnhaus mit ganz eigener Handschrift werden kann. Gleichzeitig eröffnet das große Grundstück auch alternative Entwicklungsperspektiven: Von einem repräsentativen Neubau bis hin zu einer möglichen Projektentwicklung für ein Mehrfamilienhaus – vergleichbare Konzepte finden sich bereits im direkten Umfeld.

Die Immobilie ist seit rund elf Jahren vermietet. Wir bitten Sie freundlich, diese Situation in Ihre Überlegungen einzubeziehen. Auf Rücksickt auf die Privatsphäre der Mieter können keine Innenfotos zur Verfügung gestellt werden.

Ein Haus mit Geschichte, Substanz und außergewöhnlichem Potenzial – ein Ort, an dem neue Ideen Gestalt annehmen können.

Ausstattung

  • gefragte Wohnlage in Krefeld Bockum
  • außerordentlich großes, parkähnliches Grundstück
  • herrschaftliche Architektur der 50er Jahre
  • voll unterkellert
  • moderne Gas-Zentralheizung
  • unglaublich viel Potential: ob behutsame Sanierung, Neubau oder Projektentwicklung
  • uvm.!

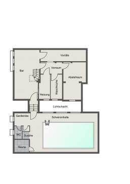
Grundrisse

Lage

Mitten in Krefeld-Bockum! Eine der gefragtesten Wohnlagen Krefelds! Die zahlreichen Grünanlagen, die Nähe zum beliebten Stadtwald sowie die gute Infrastruktur sind nur wenige Vorteile dieser lebenswerten Lage!

Alle Geschäfte des täglichen Bedarfs sowie die Anbindung an öffentliche Verkehrsmittel sind gut zu erreichen. Kindergärten, weiterführende Schulen und Bäcker sind ebenfalls in Kürze erreicht.
Ein zahlreiches Angebot an Freizeitmöglichkeiten rundet diese Wohnlage ab. Golfplätze, Tennisclubs, der CHTC Hockeyplatz sowie der Krefelder Schwimmverein befinden sich in nächster Nähe und können problemlos mit dem Fahrrad besucht werden.
Auch alle umliegenden Autobahnen z.B. in Richtung Düsseldorf oder das Ruhrgebiet, sind in wenigen Minuten erreicht.
Eine sehr begehrte Wohnlage, die keine Wünsche offen lässt!

Sonstiges

Weitere interessante Angebote: WWW.KERSTING-IMMOBILIEN.DE

Sie möchten Ihre Immobilie jetzt oder später verkaufen bzw. vermieten? Dann nutzen Sie unsere über 37jährige Erfahrung in der Vermittlung von Immobilien!

Gerne bewerten wir kostenfrei auch Ihre Immobilie und erstellen Ihnen ganz unverbindlich ein individuelles Vermarktungskonzept.

Einfach anrufen, mailen oder ein Besuch in unserem Immobilienshop Uerdinger Str. 242 in Krefeld-Bockum. Wir sind gerne für Sie da!

Wir wurden 2024 erneut mehrfach ausgezeichnet:

BELLEVUE BEST PROPERTY AGENT 2024
IMMOBILIENSCOUT PREMIUMPARTNER 2024
FOCUS TOP IMMOBILIENMAKLER 2024
IMMOWELT BUSINESSPARTNER 2024

...und auch 2025 wieder:

BELLEVUE BEST PROPERTY AGENT 2025
IMMOBILIENSCOUT EXPERT 2025
FOCUS TOP IMMOBILIENMAKLER
IMMOWELT BUSINESSPARTNER

Energieausweis

  • Ausweistyp: Bedarf
  • Verbrauchskennwert: kWh/(m²*a)
  • Endenergiebedarf: 159.70 kWh/(m²*a)
  • Gültig bis: 2035-12-04
  • Befeuerungsart:
  • Baujahr der Heizanlage:
  • Energiekennwert: E

Courtage & Haftung

Der guten Ordnung halber möchten wir darauf aufmerksam machen, dass bei Abschluss eines notariellen Kaufvertrages, der durch unseren Nachweis und/oder Vermittlung zustande kommt, der Käufer an uns eine Maklerprovision in Höhe von 3,57% inkl. 19% MwSt. des Kaufpreises zu zahlen hat. Sämtliche Angaben erhielten wir vom Eigentümer. Bitte haben Sie Verständnis dafür, dass wir jede Haftung für die Richtigkeit der Angaben vollständig ausschließen. Außerdem möchten wir darauf hinweisen, dass im Exposé enthaltenes Bildmaterial aufgrund von Fotobearbeitungsprogrammen oder Einsatz von künstlicher Intelligenz von der Realität abweichen kann.

Kersting Immobilien in Krefeld
Unser Immobilienshop

Kersting Immobilien
Uerdinger Straße 242
47800 Krefeld
Telefon 02151 560043
info@kersting-immobilien.de

Anfrage zur Immobilie

"Die Herren Kersting haben durch ihre zuverlässige und kompetente Art uns von ihrer Leistung sehr überzeugt. Wir können Immobilien Kersting uneingeschränkt empfehlen. Unser Hausverkauf hat von Anfang bis Ende hervorragend geklappt! Die fünf ★★★★★ sind wirklich gerechtfertigt."
Kundenstimmen lesen | Hinweise

★★★★★ 5 zum Verkauf eines Hauses in der Dyklage.

"Sehr nette und professionelle Beratung. Mit Herrn Kersting haben wir unsere Traum-Immobilie in Krefeld gefunden. Außerdem hat er uns geholfen, einen geeigneten Architekten zu finden. Ein solches Engagement ist wirklich nicht selbstverständlich!"
Kundenstimmen lesen | Hinweise

★★★★★ 5 zum Kauf eines Hauses in KR-Stadtwald.

Sie suchen ein Haus in Krefeld zum Kauf? Mit über 36 Jahren Erfahrung sind wir Ihr kompetenter Immobilienmakler in Krefeld und am Niederrhein.
Kontaktieren Sie uns