Auszeichnung als Immobilienmakler

KR-Bockum: Besondere, kernsanierte Altbauwohnung mit tollen Details, Aufzug & bester Infrastruktur!

  • Krefeld-Bockum

Daten zur Immobilie

  • Objekt-Nr.5301
  • Ort47800 Krefeld
  • ObjektartEtagenwohnung
  • Zimmer3
  • Wohnfläche98.00 m²
  • KaltmieteErfolgreich vermarktet!
  • Heiz-/Nebenkosten-
Sandra Roslawsky von Kersting Immobilien
Sandra Roslawsky Ihr Ansprechpartner

Telefon 02151 560043
info@kersting-immobilien.de

Objektbeschreibung

Leben im Altbau: Ein richtig schönes Mietangebot für Jung und Alt in top Wohnlage von Krefeld-Bockum mit bester Infrastruktur!

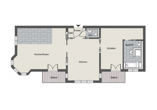
Bereits das äußere Erscheinungsbild der Immobilie und der Eingangsbereich mit seinem imposanten, originalen Treppenhaus dürfte Sie begeistern! Diese schicke 3-Zimmerwohnung verfügt über ca. 98 m² Wohnfläche und befindet sich im 2. Obergeschoss eines wunderschönen Altbau-Stadthauses, welche Sie auch bequem über einen Aufzug erreichen können.

In der Wohnung angekommen, erwartet Sie eine ideale Raumaufteilung. Über einen kleinen Flur, mit Platz für eine Garderobe sowie einem separaten, modern gestalteten Gäste-WC, gelangen Sie in das erste von drei Zimmern mit außergewöhnlich schönen Details: Alle Räume verfügen über hohe Decken, Stuckelemente, sowie originale, liebevoll aufgearbeitet Doppelschiebetüren, die für eine besondere Wohnatmosphäre sorgen.

Linker Hand befindet sich das große Schlafzimmer, mit en-suite Badezimmer und ausreichend Stellfläche für Ihre Schränke. Rechter Hand, auch hier durch eine wunderschöne Doppel-Schiebetür abgeteilt, gelangen Sie in den wirklich großzügigen Koch- und Essbereich, der vor allem durch den besonderen Erker mit seinen vielen Fenstern überzeugt! Überhaupt ist die Wohnung aufgrund der vielen Fenster lichtdurchflutet und freundlich gestaltet. Zwei Balkone, elektrische Rollläden an allen Fenstern, charmante Stuckelemente gepaart mit modernen Akzenten vervollständigen diese außergewöhnliche Mietwohnung!

Wir haben Ihr Interesse geweckt? Dann freuen wir uns über Ihre schriftliche Kontaktaufnahme.

Ausstattung

  • wunderschöne Altbauwohnung in bester Wohnlage
  • sehr gute Grundrissgestaltung
  • tolle Altbaudetails, wie Schiebetüren und Stuckelemente
  • hochwertiger Parkettboden in Wohnund Schlafräumen
  • offener Kochund Essbereich
  • großes Tageslichtbad mit Dusche und Badewanne
  • separates Gäste-WC
  • zwei Balkone
  • Aufzug
  • elektrische Rollläden
  • uvm.!

Grundrisse

Lage

Krefeld-Bockum! Zweifelsohne die beliebteste Wohnlage Krefelds.
Gute Einkaufsmöglichkeiten, beste Verkehrsanbindungen, auch mit Bus und Bahn. Schulen, Ärzte, Banken, etc., alles fußläufig zu erreichen... Auch in der City sind Sie in wenigen Minuten! Der Krefelder Stadtwald in nächster Nähe - Sportvereine, Restaurants, Golfplätze, etc., diese Lage ist wirklich perfekt!
Ein wirklich sehr toller Standort für Jung und Alt!

Sonstiges

Weitere interessante Angebote: WWW.KERSTING-IMMOBILIEN.DE

Sie möchten Ihre Immobilie jetzt oder später verkaufen bzw. vermieten? Dann nutzen Sie unsere über 36jährige Erfahrung in der Vermittlung von Immobilien!

Gerne bewerten wir kostenfrei auch Ihre Immobilie und erstellen Ihnen ganz unverbindlich ein individuelles Vermarktungskonzept.

Einfach anrufen, mailen oder ein Besuch in unserem Immobilienshop Uerdinger Str. 242 in Krefeld-Bockum. Wir sind gerne für Sie da!

Wir wurden 2024 erneut mehrfach ausgezeichnet:

BELLEVUE BEST PROPERTY AGENT 2024
IMMOBILIENSCOUT PREMIUMPARTNER 2024
FOCUS TOP IMMOBILIENMAKLER 2024
IMMOWELT BUSINESSPARTNER 2024

...und auch 2025 wieder:

BELLEVUE BEST PROPERTY AGENT 2025
IMMOBILIENSCOUT EXPERT 2025
FOCUS TOP IMMOBILIENMAKLER
IMMOWELT BUSINESSPARTNER

Energieausweis

Der Energieausweis ist beantragt und die Daten sind für Sie in Kürze hier verfügbar.

Haftung

Sämtliche Angaben erhielten wir vom Eigentümer. Bitte haben Sie Verständnis dafür, dass wir jede Haftung für die Richtigkeit der Angaben vollständig ausschließen. Außerdem möchten wir darauf hinweisen, dass im Exposé enthaltenes Bildmaterial aufgrund von Fotobearbeitungsprogrammen oder Einsatz von künstlicher Intelligenz von der Realität abweichen kann.

Kersting Immobilien in Krefeld
Unser Immobilienshop

Kersting Immobilien
Uerdinger Straße 242
47800 Krefeld
Telefon 02151 560043
info@kersting-immobilien.de

"Über Kersting Immobilien habe ich zwei Wohnungen vermietet. Diese Firma wäre im Bedarfsfall meine erste Wahl. Kompetent, erfahren, zuverlässig."
Kundenstimmen lesen | Hinweise

★★★★★ 5 zur Vermietung von Wohnungen in Hüls.

"Kompetent, flexibel, freundlich, zuvorkommend, gute Erreichbarkeit"
Kundenstimmen lesen | Hinweise

★★★★★ 5 zum Mietangebot einer Maisonettewohnung in St. Tönis.

Sie suchen ein Haus in Krefeld zum Kauf? Mit über 36 Jahren Erfahrung sind wir Ihr kompetenter Immobilienmakler in Krefeld und am Niederrhein.
Kontaktieren Sie uns